December Planning Report
Innovation Hubs! Healthy Living Centres! Forts! Gyms! Kebabs!
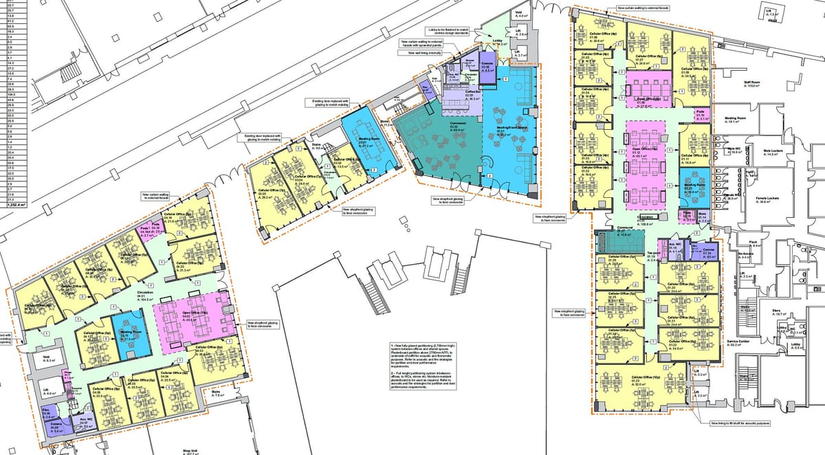
A big month for planning applications in Medway, and for once, things tend to skew away from residential to mostly commercial plans. There’s big news on the redevelopment of the upstairs of the Pentagon, some big changes at Hempstead Valley, an upgrade for a fort, a new gym, and loads more. Let’s get to it.
Pentagon get an Innovation Hub
